Anillo de conexión/pila: cabina de pintura en aerosol
Anillo de apilamiento/conector
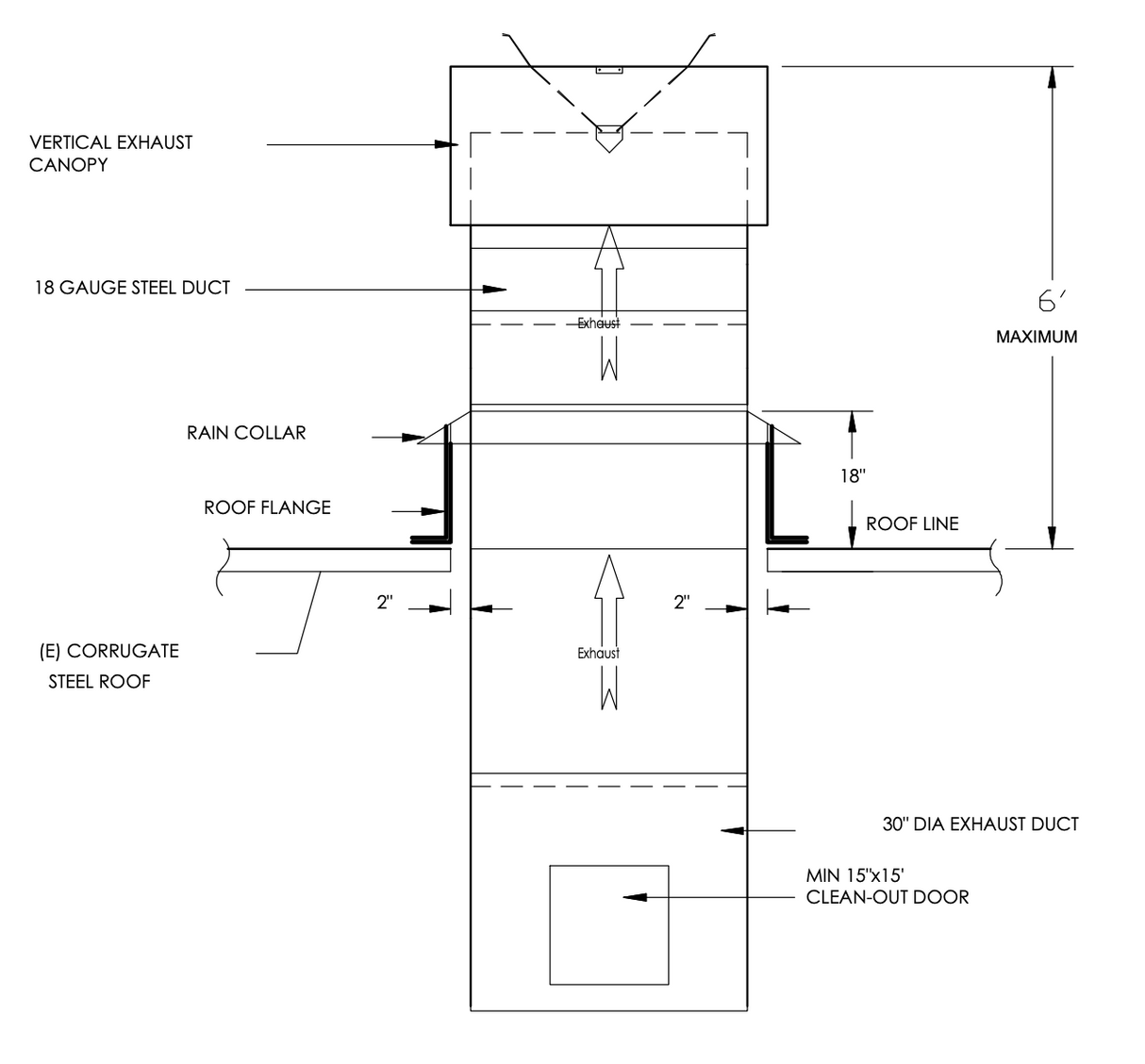
Los anillos de conexión/pila de la cabina de pintura en aerosol se utilizan para conectar un ventilador de escape a otros componentes de la pila del sistema de escape.
Los componentes de la chimenea de escape de la cabina de pintura en aerosol están fabricados con acero galvanizado: calibre 20 para diámetros inferiores a 30"; calibre 18 para diámetros de 30" o más. Los tamaños de chimenea disponibles son de 12", 18", 24", 34" y 42" de diámetro. El diseño del conducto cumple con el Código uniforme contra incendios NFPA 91, última edición.
NOTA: El anillo de conexión/pila conecta la chimenea de escape a la carcasa del ventilador. Se requiere 1 por ventilador.
FOB - Nos pondremos en contacto con usted para ofrecerle una cotización de flete o podrá organizar su propio flete.
Los conductos y accesorios para cabinas se fabrican a medida cuando se solicitan o en lotes muy pequeños. No se pueden devolver; las ventas son definitivas una vez que se confirma el envío.
Payment & Security
Payment methods
Your payment information is processed securely. We do not store credit card details nor have access to your credit card information.






