Chimenea de escape estándar - Cabina de pintura
Tubo de escape estándar
Un conducto de escape viene con una sección recta de 4 pies de largo, con un extremo corrugado para una fácil instalación. Todos los tamaños están fabricados con acero galvanizado y requieren algo de ensamblaje.
Necesitará un anillo conector si lo conecta al ventilador de la cabina.
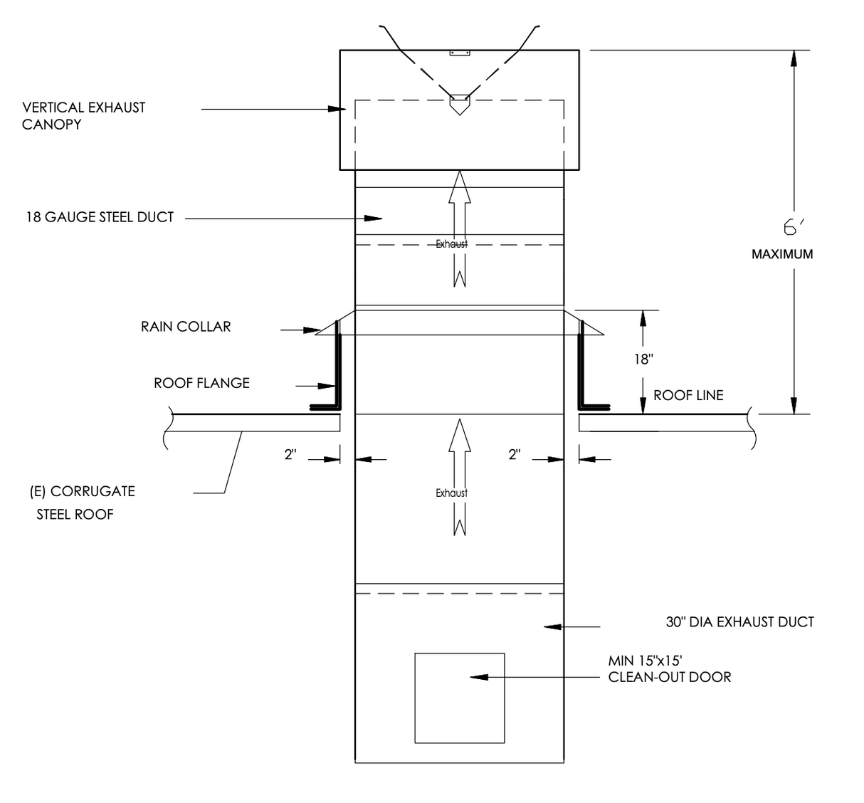
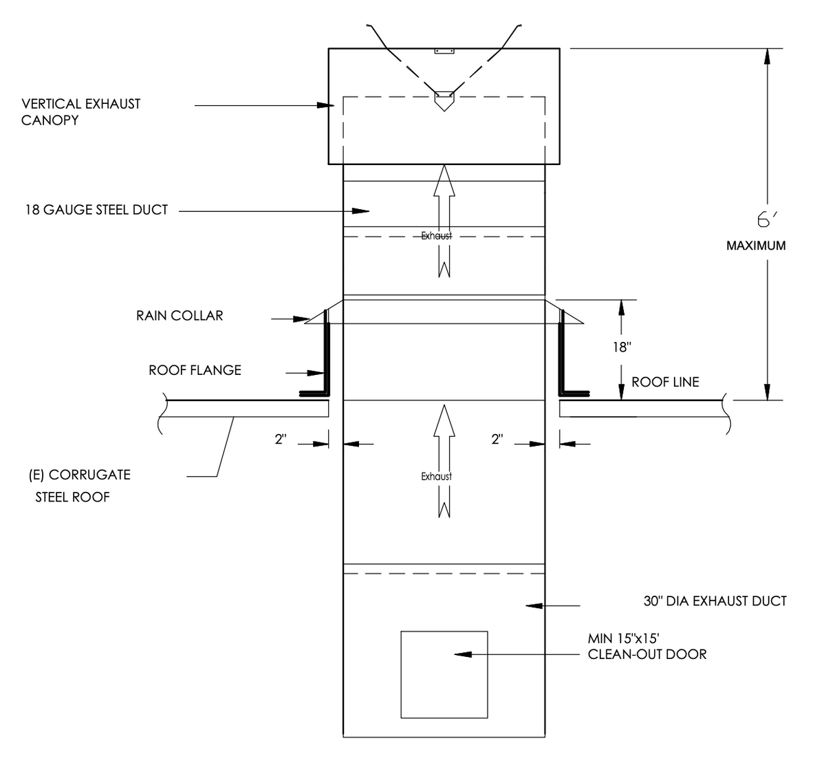
Los componentes de la chimenea de escape de la cabina de pintura en aerosol están fabricados con acero galvanizado: calibre 20 para diámetros inferiores a 30"; calibre 18 para diámetros de 30" o más. Los tamaños de chimenea disponibles son de 12", 18", 24", 30", 34" y 42" de diámetro. El diseño del conducto cumple con el Código uniforme contra incendios NFPA 91, última edición.
4 pies de largo x Elija diámetro
FOB - Nos pondremos en contacto con usted para ofrecerle una cotización de flete o podrá organizar su propio flete.
Los conductos y accesorios de la cabina se fabrican a medida. No se pueden devolver y las ventas son definitivas una vez que se confirma el envío.
Payment & Security
Payment methods
Your payment information is processed securely. We do not store credit card details nor have access to your credit card information.





