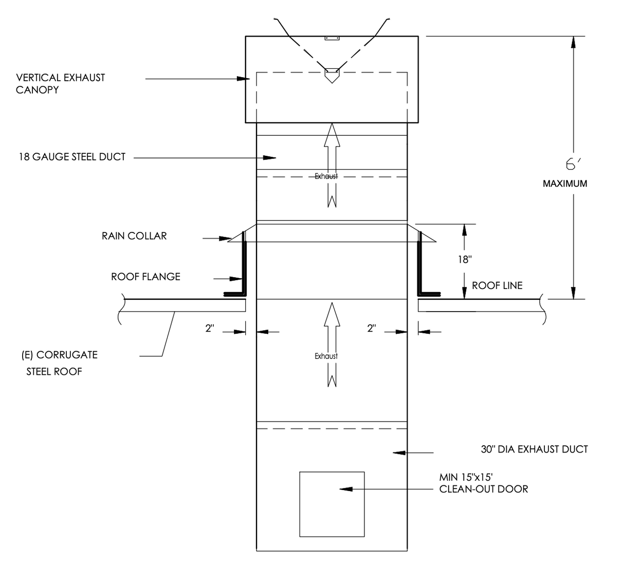
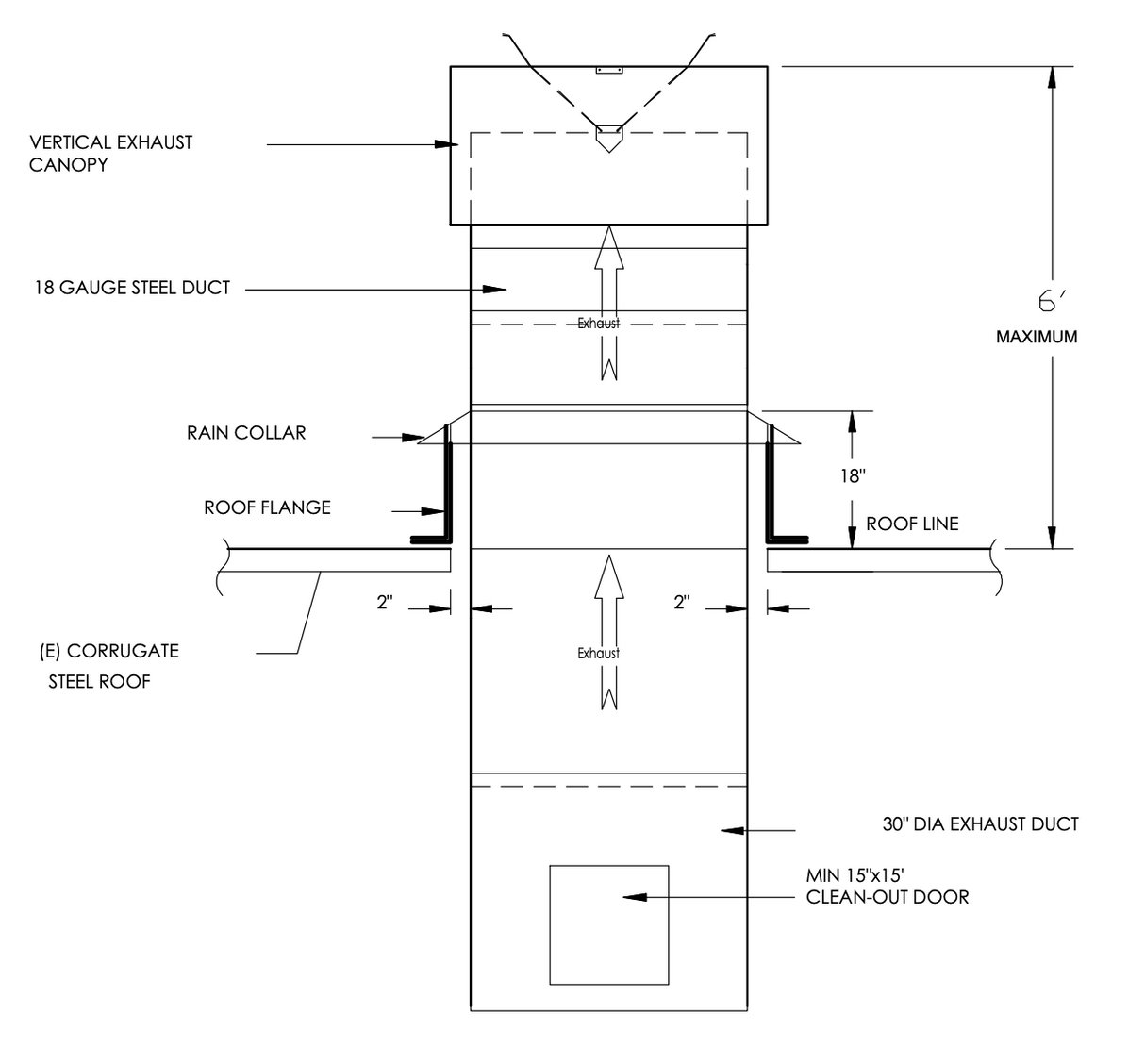
Revestimiento de cubierta estándar para cubiertas planas: cabina de pintura en aerosol
Tapajuntas estándar para techos planos
Los componentes de la chimenea de escape de la cabina de pintura en aerosol están fabricados con acero galvanizado: calibre 20 para diámetros inferiores a 30"; calibre 18 para diámetros de 30" o más. Los tamaños de chimenea disponibles son de 12", 18", 24", 30", 34" y 42" de diámetro. El diseño del conducto cumple con el Código uniforme contra incendios NFPA 91, última edición.
Pida el mismo diámetro que el conducto. El diámetro del tapajuntas es 6" más grande que el del conducto. Esto es requerido por el código NFPA.
FOB - Nos pondremos en contacto con usted para ofrecerle una cotización de flete o podrá organizar su propio flete.
Los conductos y accesorios de la cabina se fabrican a medida. No se pueden devolver y la venta es definitiva una vez confirmado el envío.
Piezas y accesorios:
- Falda de sección de cuarto de conducto SBE155-XX (collar)
Payment & Security
Payment methods
Your payment information is processed securely. We do not store credit card details nor have access to your credit card information.





