Persiana de pared - Cabina de pintura en aerosol
Persiana de pared
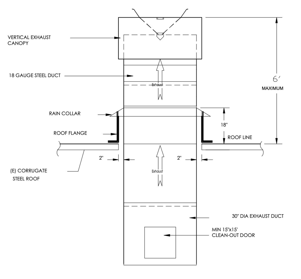
Los componentes de la chimenea de escape de la cabina de pintura en aerosol están fabricados con acero galvanizado: calibre 20 para diámetros inferiores a 30"; calibre 18 para diámetros de 30" o más. Los tamaños de chimenea disponibles son de 24", 30", 36" y 42" de diámetro. El diseño del conducto cumple con el Código uniforme contra incendios NFPA 91, última edición.
Se incluye adaptador/tapajuntas para conducto redondo y contraventana cuadrada.
FOB - Nos pondremos en contacto con usted para ofrecerle una cotización de flete o podrá organizar su propio flete.
Los conductos y accesorios de la cabina se fabrican a medida y no se pueden devolver.
Payment & Security
Payment methods
Your payment information is processed securely. We do not store credit card details nor have access to your credit card information.
 
             
                   
                   
                   
                  








 
         
              